
产品概述
XYN9-27.5户内箱型移开式交流金属封闭开关设备,是电气化铁道专用的成套配电装置,系单相交流50HZ的户内设备,供电气化铁道牵引变电所、开闭所、分区亭作为铁道干线电力牵引供电系统接受和分配电能之用。
产品特点
■ 节约变电所高压配电室的占地面积。
■ 根据用户需要,高压室可不设电缆沟,可减少若干预埋件,有效降低变电所造价。
■ 箱式开关设备,便于观察维护,防护等级高。
■ 灵活的工程设计理念,完善的一次线路设计方案。
■ 自动化程度高,可实现就地或远方遥控操作。
产品参数

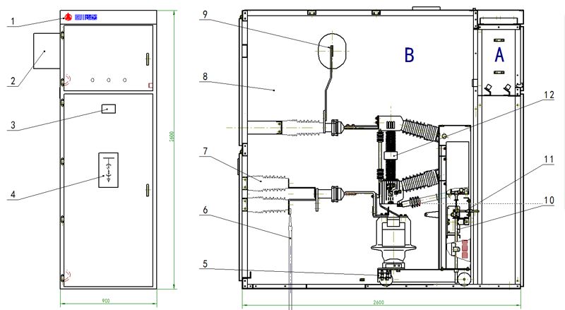
开关柜结构图

A 仪表室 B 高压室
1 楣头 2 柜间套管 3 产品铭牌 4 模拟母线排
5 接地母线 6 进出线电缆 7 支持绝缘子 8 高压室
9 主母线 10 推进机构 11 连锁定位机构 12 真空断路器
用户在订货时应注明
a)断路器型号,名称及订货数量
b)断路器额定电压,额定电流及额定短路开断电流
c)额定操作电压
d)备品,备件的名称及数量
e)用户若有其他特殊需求,可在订货时说明
f)产品咨询电话:028-63155909